J41TC陶瓷截止閥
J41TC陶瓷截止閥閥座密封面采用工程陶瓷材料的先進工藝研制開發制造而成,耐磨、耐沖刷、抗擦傷性能特強,其使用壽命比普通合金材質密封面高10倍以上。采用高性能填料,密封可靠、性能優良、造型美觀。傳動方式有手動、齒輪傳動、電動、氣動等,滿足各種工程需要及用戶要求。
| 產品名稱: | 陶瓷截止閥 | 產品型號: | J41TC |
| 公稱通徑: | DN15~DN300 | 結構形式: | 截止式 |
| 公稱壓力: | 1.6MPa~16.0MPa | 連接方式: | 法蘭、焊接 |
| 適用溫度: | -29ºC~+650ºC | 驅動方式: | 手輪、傘齒輪、電動 |
| 閥體材質: | WCB、碳鋼、鉻鉬釩鋼、不銹鋼 | 制造標準: | 國標GB、德國DIN、美國API、ANSI |
| 適用介質: | 水、油、蒸汽、氣體、礦漿 | 生產廠家: | 上海承質煩制造有限公司 |
| 閥體 | 25 WCB | 12Cr1MoV | ZGCr5Mo | ZG1Cr18Ni9Ti |
| 閥蓋 | 25 WCB | 12Cr1MoV | ZGCr5Mo | ZG1Cr18Ni9Ti |
| 閥板 | 25 +工程陶瓷 | 25Cr2Mo+工程陶瓷 | ZGCr5Mo+工程陶瓷 | ZG1Cr18Ni9Ti+工程陶瓷 |
| 閥座 | 工程陶瓷 | 工程陶瓷 | 工程陶瓷 | 工程陶瓷 |
| 閥桿 | 2Cr13 | 25Cr2MoV | 25Cr2MoV | 1Cr18Ni9Ti |
| 閥桿螺母 | ZCuA110Fe3 | ZCuA110Fe3 | ZCuA110Fe3 | ZCuA110Fe3 |
| 公稱壓力 | 1.6 | 2.5 | 4.0 | 6.4 | 10.0 | 16.0 |
| 強度試驗 | 2.4 | 3.8 | 6.0 | 9.6 | 15.0 | 24.0 |
| 水密封試驗 | 1.8 | 2.8 | 4.4 | 7.4 | 11.0 | 18.0 |
| 上密封試驗 | 1.8 | 2.8 | 4.4 | 7.04 | 11.0 | 18.0 |
| 氣密封試驗 | 0.4-0.7 | |||||
| 體蓋扳 | 閥桿 | 密封面 | 墊片(環) | 填料 | 工作溫度℃ | 適用介質 |
| WCB | 2Cr13 |
13Cr STL 本體材料 尼龍 |
增強柔性石墨 1Crl3/柔性石墨 08軟鋼 0Cr18Ni9Ti OCr18Ni12Mo2Ti |
柔性石墨 增強柔性石墨 SFB-260 SFP-260 |
≤425 | 水、蒸汽、油品 |
| WC1 |
38CrMoAI 25Cr2MoV |
≤450 | ||||
| WC6 | ≤540 | |||||
| WC9 | ≤570 | |||||
| ZGCr5Mo | ≤540 | |||||
| ZG1Cr18Ni9Ti | 1Cr18Ni9Ti | ≤200 | 硝酸類 | |||
| ZGCr18Ni12Mo2Ti | 1C18Ni12Mo2Ti | ≤200 | 醋酸類 |
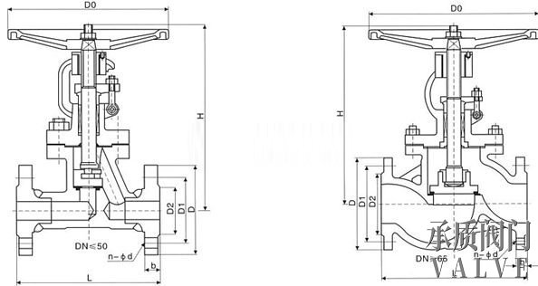
| 1.6MPa | DN | L | D | D1 | D2 | b | n-Φd | H | D0 |
|
凸面法蘭 RF J41TC 16C 16P 16R 16I |
10 | 130 | 90 | 60 | 40 | 14 | 4-Φ14 | 198 | 120 |
| 15 | 130 | 95 | 65 | 45 | 14 | 4-Φ14 | 218 | 120 | |
| 20 | 150 | 105 | 75 | 55 | 14 | 4-Φ14 | 258 | 140 | |
| 25 | 160 | 115 | 85 | 65 | 14 | 4-Φ14 | 275 | 140 | |
| 32 | 180 | 135 | 100 | 78 | 16 | 4-Φ18 | 280 | 160 | |
| 40 | 200 | 145 | 110 | 85 | 16 | 4-Φ18 | 330 | 180 | |
| 50 | 230 | 160 | 125 | 100 | 16 | 4-Φ18 | 350 | 200 | |
| 65 | 290 | 180 | 145 | 120 | 18 | 4-Φ18 | 370 | 280 | |
| 80 | 310 | 195 | 160 | 135 | 20 | 8-Φ18 | 400 | 280 | |
| 100 | 350 | 215 | 180 | 155 | 20 | 8-Φ18 | 415 | 320 | |
| 125 | 400 | 245 | 210 | 185 | 22 | 8-Φ18 | 460 | 360 | |
| 150 | 480 | 280 | 240 | 210 | 24 | 8-Φ23 | 510 | 450 | |
| 200 | 600 | 335 | 295 | 265 | 26 | 12-Φ23 | 710 | 500 | |
| 250 | 650 | 405 | 335 | 320 | 30 | 12-Φ25 | 786 | 550 | |
| 300 | 750 | 460 | 410 | 375 | 30 | 12-Φ25 | 925 | 600 |

|
聲明:【J41TC陶瓷截止閥】規格型號、結構尺寸由上海承質閥門制造有限公司提供,如何選擇適用的J41TC陶瓷截止閥產品,使之在工藝控制中安全可靠、經濟適用,可致電我司銷售部門及技術部門,我們將在最短的時間內為您解答! |