
(1)不銹鋼高壓球閥采用板簧預載的可動金屬閥座結構,密封力設計合理,啟閉靈活,密封可靠。
(2)高壓球閥根據用戶的需要,可設計成適用于含固體顆粒、料漿等介質的結構戒耐較高溫度的結構。
(3)高壓球閥采用下裝式閥捍,設置倒密封結構,能確保填料處可靠密封。壓力:1.6-MPa-32.0MPa
| 產品名稱: | 不銹鋼高壓球閥 |
|
Q41/Q11/Q61 |
|
|
手動,電動,氣動 |
|
螺紋,法蘭,焊接 |
|
|
直通式/固定式 |
|
軟密封,硬密封 |
|
|
1.6MPa-42MPa |
|
DN6-200 |
|
|
碳鋼,鍛鋼,哈氏合金鋼HC276等 |
|
承質品牌 |
設計規范:設計和制造按ASME B16.34;
閥門結構長度按ASME B16.10;
法蘭尺寸按ASME B16.5。
參考標準:
API 6D-2008《石油和天然氣工業管線輸送系統管線閥門》;
API 598-2009《閥門的檢查我和試驗》 ;
ASTM A182- 2002a《高溫用鍛制或軋制合金鋼法蘭、鍛制管件、閥門和部件》;
ASTM A193/A-2001b《高溫用合金鋼和不銹鋼栓接材料》;
API Q1-2007《質量綱要規范》;
NACE-MR-0175-2003 《油田設備用抗硫化物應力腐蝕斷裂和應力腐蝕裂紋的金屬材料》;
API 607



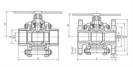
|
公稱通徑 |
尺寸(mm) |
|||
|
L |
H |
D |
D1 |
|
|
10 |
90 |
76 |
32 |
3/8 |
|
15 |
90 |
76 |
32 |
1/2 |
|
20 |
100 |
81 |
38 |
3/4 |
|
25 |
115 |
92 |
45 |
1 |
|
32 |
130 |
114 |
55 |
11/4 |
|
40 |
150 |
125 |
65 |
11/2 |
|
50 |
170 |
144 |
75 |
2 |
|
注:對焊和承插式結構長度與內螺紋式長度相同 |
||||
|
公稱通徑 |
尺寸(mm) |
|||||||||||||||
|
L |
d1 |
L1 |
D |
D1 |
D2 |
b |
Z-Φd |
H |
||||||||
|
mm |
in |
全通徑FP |
縮徑RP |
全通徑FP |
縮徑RP |
全通徑FP |
縮徑RP |
QA41 |
QA341 |
QA641 |
QA941 |
|||||
|
15 |
1/2″ |
130 |
- |
15 |
- |
- |
- |
95 |
65 |
45 |
14 |
4-14 |
62 |
- |
200 |
- |
|
20 |
3/4″ |
140 |
- |
20 |
- |
- |
- |
105 |
75 |
55 |
14 |
4-14 |
68 |
- |
204 |
- |
|
25 |
1″ |
150 |
- |
25 |
- |
- |
- |
115 |
85 |
65 |
14 |
4-14 |
75 |
- |
215 |
360 |
|
32 |
11/4″ |
165 |
- |
32 |
- |
- |
- |
135 |
100 |
78 |
16 |
4-14 |
85 |
- |
240 |
390 |
|
40 |
11/2″ |
182 |
- |
40 |
|
- |
- |
145 |
110 |
85 |
16 |
4-18 |
95 |
- |
264 |
395 |
|
50 |
2″ |
200 |
- |
50 |
- |
- |
- |
160 |
125 |
100 |
16 |
4-18 |
110 |
- |
360 |
472 |
|
65 |
21/2″ |
220 |
- |
65 |
- |
- |
- |
180 |
145 |
120 |
18 |
4-18 |
130 |
- |
379 |
530 |
|
80 |
3″ |
250 |
283 |
80 |
65 |
- |
- |
195 |
160 |
135 |
20 |
4-18 |
155 |
- |
452 |
580 |
|
100 |
4″ |
280 |
305 |
100 |
80 |
- |
- |
215 |
180 |
155 |
20 |
8-18 |
180 |
320 |
479 |
630 |
|
125 |
5″ |
320 |
381 |
125 |
100 |
- |
- |
245 |
210 |
185 |
22 |
8-18 |
250 |
380 |
646 |
710 |
|
150 |
6″ |
360 |
403 |
150 |
125 |
- |
- |
280 |
240 |
210 |
24 |
8-23 |
275 |
400 |
666 |
670 |
|
200 |
8″ |
400 |
419 |
200 |
150 |
- |
- |
335 |
295 |
265 |
26 |
12-23 |
330 |
450 |
615 |
825 |
|
聲明:【不銹鋼高壓球閥 Q41/Q11/Q61】規格型號、結構尺寸由上海承質閥門制造有限公司提供,如何選擇適用的不銹鋼高壓球閥 Q41/Q11/Q61產品,使之在工藝控制中安全可靠、經濟適用,可致電我司銷售部門及技術部門,我們將在最短的時間內為您解答! |